Trilocale in vendita

Scandicci - Vingone
Informazioni in agenzia
3 locali 3 locali
68 Mq 68 Mq
1 bagno 1 bagno

Trilocale in vendita

Scandicci - Vingone

Descrizione annuncio

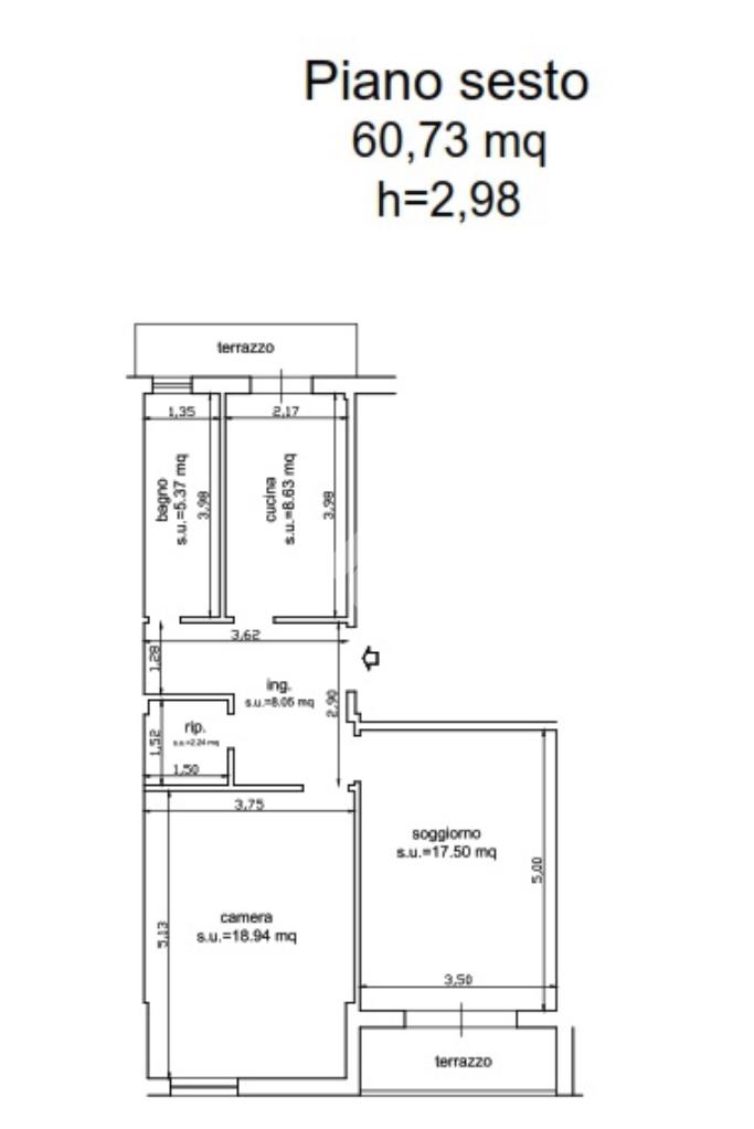
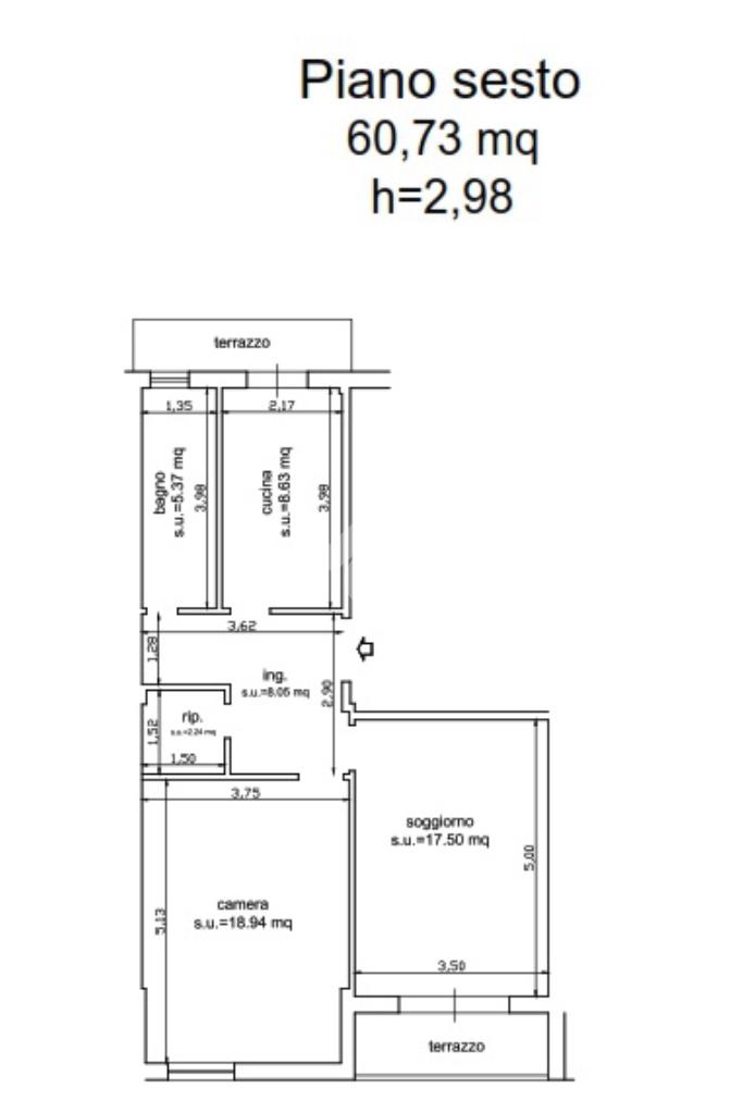
In Via Giotto 21 a Scandicci, al sesto piano di un edificio servito da ascensore, è in vendita un luminoso appartamento di tre vani, caratterizzato da ambienti ben distribuiti e da una piacevole sensazione di ariosità grazie alla doppia esposizione e ai due balconi.

L’ingresso si apre su una zona giorno accogliente, composta da un soggiorno e da una cucina separata, entrambi con accesso diretto ai rispettivi balconi. Questa caratteristica conferisce alla casa una luminosità costante e una ventilazione naturale che la rendono estremamente piacevole da vivere. Gli ambienti sono ampi e funzionali, ideali per chi desidera coniugare comfort, praticità e una chiara distinzione tra le varie aree della casa.

La camera matrimoniale, spaziosa e silenziosa, è perfetta per chi ricerca un ambiente intimo e rilassante, valorizzato da un’ottima illuminazione naturale. Il bagno, di ampie dimensioni e finestrato, è dotato di vasca e si presenta in ottime condizioni, offrendo un ambiente comodo e curato. Completa la proprietà un pratico ripostiglio, utile per mantenere ordine e sfruttare al meglio gli spazi a disposizione.

A rendere l’offerta ancora più interessante è la presenza di un posto auto situato dietro al palazzo, disponibile a parte, particolarmente comodo per chi desidera avere un parcheggio riservato nelle immediate vicinanze dell’abitazione.

L’immobile si trova in una zona tranquilla e ben servita di Scandicci, con la comodità di negozi, supermercati, scuole, aree verdi e fermate dei mezzi pubblici a breve distanza. La posizione consente inoltre di raggiungere facilmente la tramvia, che collega in pochi minuti con Firenze, garantendo praticità per chi si sposta quotidianamente verso la città.
Questo appartamento rappresenta una soluzione perfetta per single o coppie in cerca di un’abitazione luminosa e funzionale, ma anche un’ottima opportunità per chi desidera effettuare un investimento immobiliare in una zona richiesta e in costante crescita, con ottime prospettive di rendimento nel tempo

Mostra tutto

Nelle vicinanze

Trasporto pubblico Trasporto pubblico
De André (Ciliegi)
De André (Ciliegi)
580 m
Villa Costanza
Villa Costanza
860 m
Giotto
Giotto
30 m
Giotto 02
Giotto 02
50 m
Ricariche auto elettriche Ricariche auto elettriche
EVAD Ponte a Greve
2,2 Km
GMG Spa | EnelX
2,4 Km
Eneldrive (ex SILFI) Granacci
2,4 Km
McDonald's Firenze Nenni
2,6 Km
Eneldrive /ex SILFI) Dolci
2,8 Km
Scuole Scuole
Scuole
80 m
g.rodari
450 m
Design Lab
760 m
Polimoda
770 m
Scuola secondaria di 1° grado "Altiero Spinelli"
1,2 Km
Farmacia Farmacia
Farmacia
230 m
Farmacie Comunali Scandicci 7
620 m
Farmacia Iacarelli Snc
770 m
Farmacia Le Bagnese
1,4 Km
Farmacia San Giusto
1,6 Km
Ospedali Ospedali
Misericordia di Lastra a Signa sez. Scandicci
200 m
Humanitas
380 m
ASL
1,6 Km
Croce Rossa
1,6 Km
Nuovo Ospedale San Giovanni di Dio
2,0 Km
Supermercati Supermercati
Coop.fi
310 m
Conad City
470 m
Carrefour Market
560 m
Symply Store Scandicci
570 m
Simply Market
1,4 Km
Negozi Negozi
Negozi
260 m
inCoop
680 m
Pane e pomodoro
2,0 Km
Bar Bar
7000 caffé
160 m
All'Estremo
470 m
Tuttobene
900 m
Gelateria Malotti
1,6 Km
I' Gallo
1,9 Km
Ristoranti Ristoranti
ForiLuogo
80 m
Hakkei
160 m
Ristorante Pizzeria Da I' Dino
630 m
Da Saba - La bottega del panino
730 m
La Braceria
800 m
Mostra tutto

Caratteristiche

Rif.:
61139640
Piano:
6 di 6 con ascensore (Piano alto)
Posti auto:
1
Balconi:
1
Camere da letto:
1
Arredamento:
Completo
Mostra tutto
Prezzo Prezzo
Informazioni in agenzia
Spese annue Spese annue
€ 600
Proponi il tuo prezzoProponi il tuo prezzo

Classe Energetica

G
G
G
G
G
G
G
G
G
EP globale non rinnovabile:
100.00 kW h/m² anno
EP invernale del fabbricato:
EP estiva del fabbricato:
Anno di costruzione:
1965
Riscaldamento:
Centralizzato
Tipo impianto:
A radiatori
Tipo alimentazione:
Metano

Ti interessa visionare l'immobile?

Fissa un appuntamento  Fissa un appuntamento

Richiedi informazioni

* Questi campi sono obbligatori
Affiliato
Studio Manzoni Sas
Via Alessandro Manzoni, 39 50018 Scandicci (FI)

Il nostro staff


  • Andrea Cibella
    Affiliato
Via Alessandro Manzoni, 39 50018 Scandicci (FI)
Zona: Scandicci-Casellina-Vingone
Mostra su mappa
Orari: dal lunedì al venerdì 09:00-13:00 15:30-20:00 il sabato 09:00-13:00 15:30-18:30. Domenica su appuntamento.
Affiliato
Studio Manzoni Sas
Via Alessandro Manzoni, 39 50018 Scandicci (FI)

2025 Tecnocasa Franchising S.p.A. - P. IVA 08365160152 - Via Monte Bianco 60/A 20089 Rozzano (MI). Ogni agenzia ha un proprio titolare ed è autonoma. Privacy policy | Policy utilizzo | Cookie policy